Medium Market Canteen
Comfort and Flexibility
A medium-sized biaxial towable canteen with product preparation/sales areas and extensive electricity production/storage capabilities. It has an autonomous water supply/sewerage system with the option for external connections, and an LPG network can be installed with a special external storage box for the gas cylinder. It can be placed indoors or outdoors and offers sufficient space for grilling and food preparation, with ample work surfaces, an internal ventilation hood with motor, interior/exterior LED lighting, and opening canopies in two directions. It is flexible in opening/closing and easy to transport.
The Medium Market Canteen is constructed from panels with a metal frame and insulation made of 3–4 cm thick polystyrene sheets, clad both externally and internally with aluminum sheet or GRP. The chassis is made of folded galvanized steel sheet, and the openings are fitted with aluminum frames. It comes with all necessary towing certifications for Greece and the EU, as well as the mechanical equipment required for it to operate as a complete food and beverage canteen.
Interior Space Characteristics
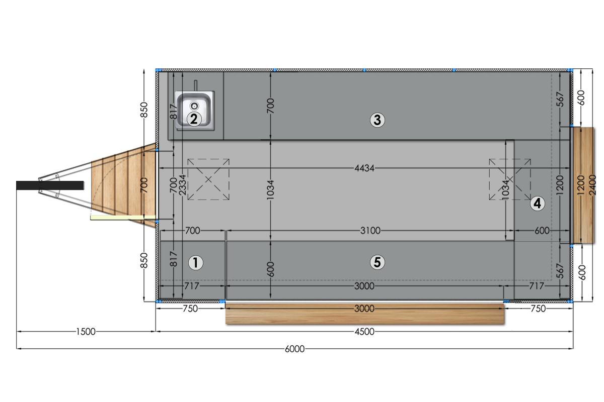
Interior Spaces:
1. Beverage refrigerator / chest freezer
2. Cabinet with sink
3. Worktop cabinets
4. Worktop cabinets
5. Refrigeration units
Basic dimensions:
Length: 4,50m
Width: 2,40m
Height: 3,08m
Effective Area: 10,8m²
Caheeba Attributes Evaluation
Based on the percentages of the Caheeba properties, the Medium Market Canteen offers the ideal combination of flexibility, with significant autonomy, production, and mobility capabilities during its operating period, provided it moves within spacious areas. It is ideal for all food and beverage uses that require moderate weight loads, refrigeration units, and high energy–consumption equipment, as well as access to water supply and drainage networks.
