Tiny Market Canteen
The Snack & Cocktail Canteen
The tiny towable canteen has common access product preparation / sale spaces with electrical energy production/storage capabilities. It has an autonomous water supply / drainage-sewerage system with the facility of external connections to the mains and a possible gas network (LPG) installation with an exterior gas cylinder storage compartment. It can be positioned in interior or exterior spaces and provides many work surfaces, storage space, dimmable led interior lighting and 3 foldable canopies It is flexible to deploy (set-up)/pack-up and easy to transport in spacious areas.
The Tiny Market Canteen is made of metal framed panels insulated by 3-4cm polystyrene and rock wool. External cladding is made of …. and internal cladding is made of GRP or aluminium foil. The chassis is made of bended galvanized sheet metal and the openings are covered with aluminum frames. It can be equipped with 1 P/V panels of 750W power capacity in total, with the necessary electrical layouts for producing electricity, while outdoors it is optionally combined with a small wind generator. It comes with all the necessary towing certifications for Greece and the EU, as well as the mechanical engineering infrastructure required to operate as a complete canteen or a small restaurant.
The “a la carte“ interior layout is available and represents the small scale complete solution for versatile professionals wishing to exhibit an environment friendly and design based scope for their products.
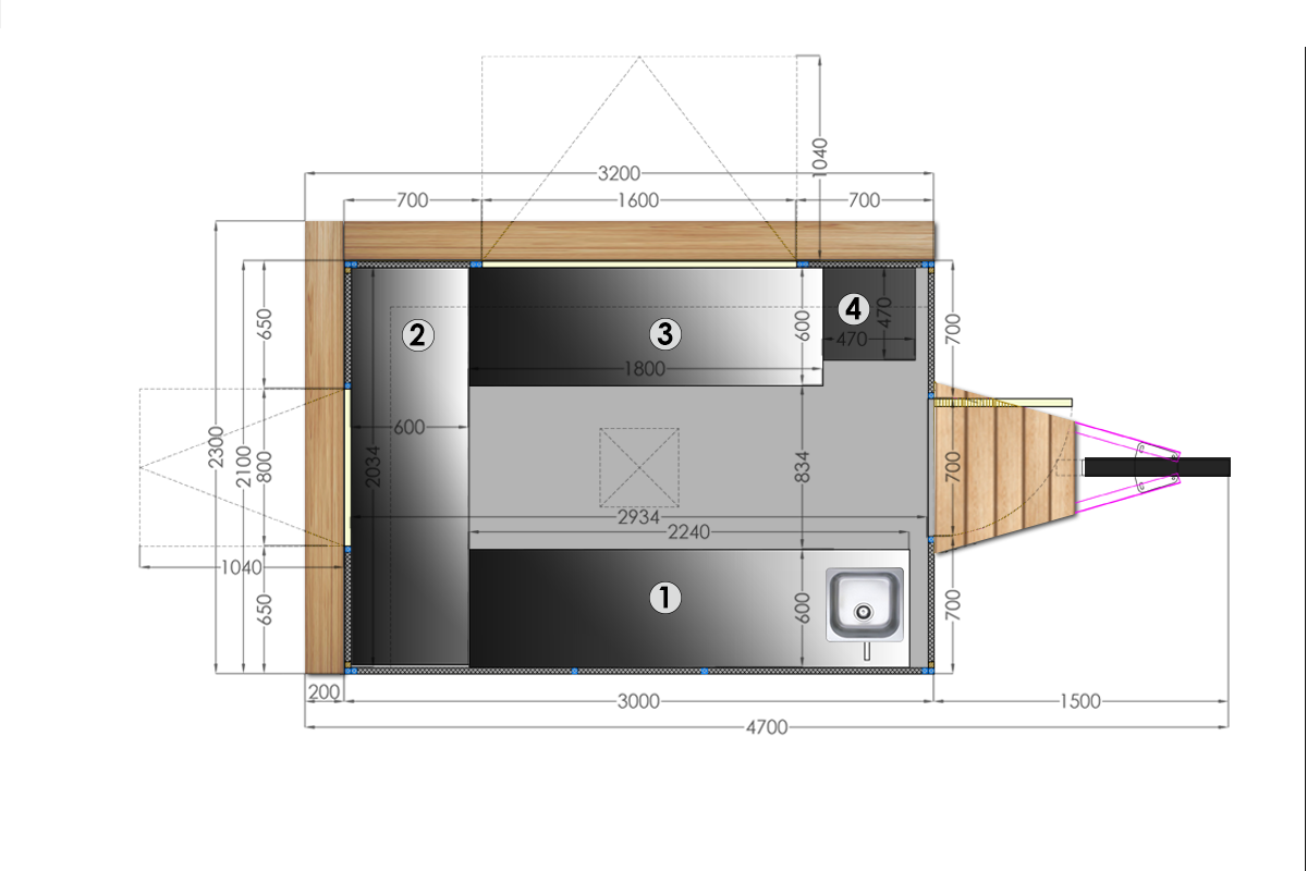
Interior Space Characteristicks
Interior Spaces:
1. Four-door refrigerated counter with sink
2. Stainless steel work table
3. Stainless steel work table
4. Beverage refrigerator
Basic dimensions:
Length:3,00m
Width: 2,10m
Height: 2,90m
Effective Area: 6,30m²
Caheeba Attributes Evaluation
Based on the percentages of the Caheeba properties, the Tiny Market Canteen has moderate autonomy capabilities and high mobility potential during its operating period. It is ideal for events or for more permanent operation in food and beverage uses, such as snacks and/or drinks.
